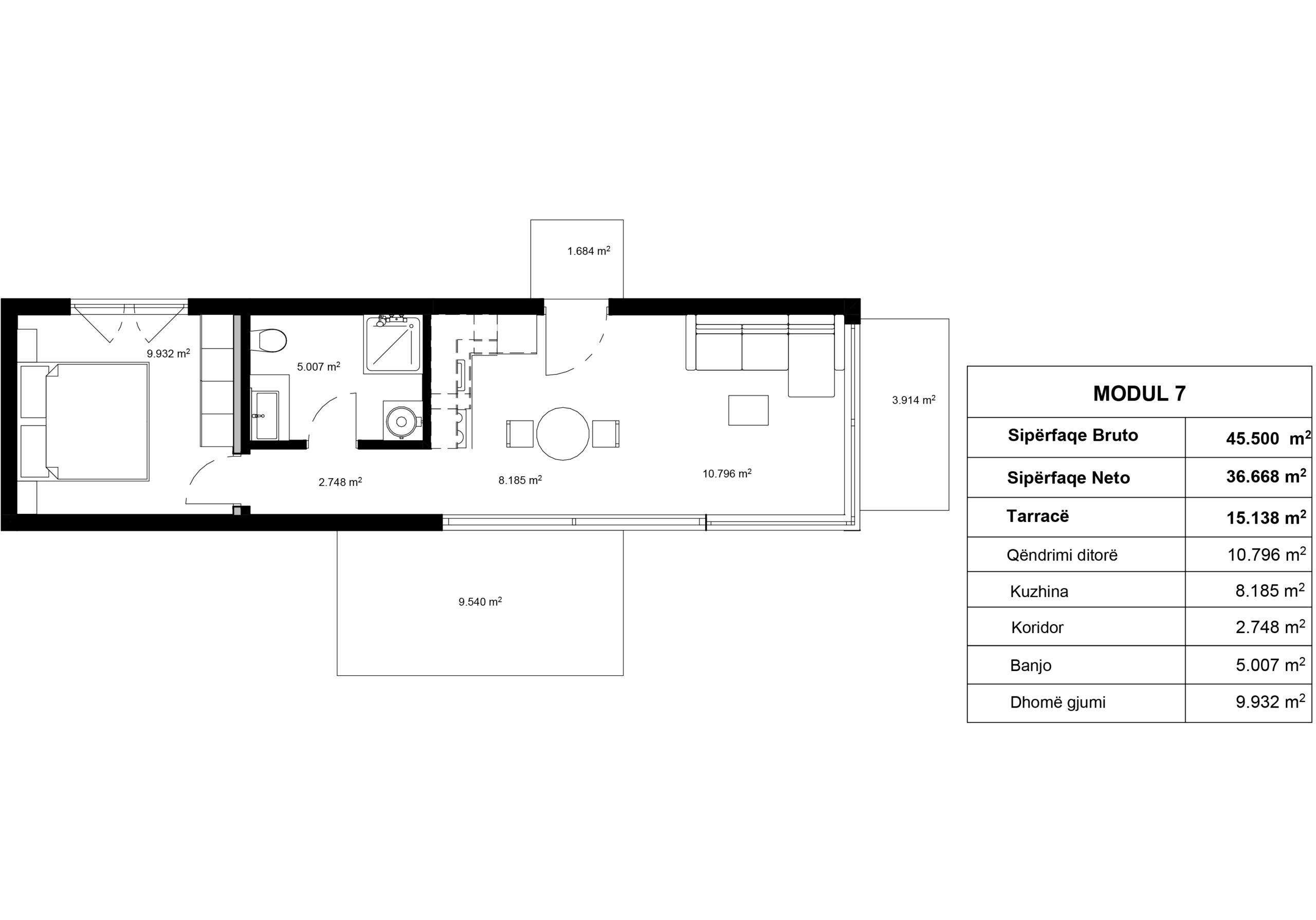
Module 7
Module banimi
Module 7
Me sipërfaqe bruto 45.500 m²
Karakteristikat e Strukturës
✓ Strukturë druri me trashësi 160 mm
✓ Izolim termik dhe akustik me lesh guri
✓ Panele shtrënguese OSB
✓ Folie kundër lagështisë (barrierë avulli)
✓ Veshje e brendshme me pllaka gipsi – sipërfaqe të lëmuara dhe gati për lyerje
✓ Fasada e jashtme me dru (Arish)
✓ Dritare & derë hyrëse të cilësisë së lartë
Specifikat e Kulmit të rrafshët
✓ Strukturë druri me trashësi 200 mm
✓ Izolim me lesh guri për mbrojtje termike dhe akustike
✓ Folie e brendshme kundër avullit
✓ Listela & pllaka knauf
✓ Pllakë shtrënguese 22 mm OSB
✓ Izolim i jashtëm, stiropor me pjerrësi + EPDM
✓ Mbulesa me llamarinë e atikave
E gatshme për instalim në çdo zonë!
Kontaktoni ekipin tonë për më shumë informacion, personalizime ose për të rezervuar ndërtimin tuaj.
